服务热线
13720140235
18782928289
全国免费咨询热线
400-6898-023
考研干货分享 —— 建筑快题中的旅馆建筑设计
2020-10-12今天,我们依旧来学习
建筑考研快题——旅馆建筑设计
童鞋们,让我们一起来开始今天的学习吧
01
旅馆建筑的定义

▲新开业的上海鲁能JW万豪侯爵酒店集建筑美学与技术于一身,与环境融洽和谐
旅馆是为客人提供一定时间住宿和服务的公共建筑或场所,按不同习惯也常称其为酒店、宾馆、饭店、度假村等。旅馆通常由客房部分、公共部分、后勤部分三大功能部分组成。
旅馆建筑的功能构成和组合方式
02

▲挪威 Svart酒店
旅馆不论类型、规模、等级如何,其内部功能均遵循分区明确、联系密切之原则,通常均由客房、公共、后勤三大部分组成。每一部分由多个功能功能片区组成,各功能片区又划分为不同的功能区;通过流线的合理组织,构成旅馆建筑完整的功能布局和流畅的运营体系。
功能构成
旅馆建筑的功能构成按流线组织可分为宾客区(亦称前台部分)和后勤区(亦称后台部分)。宾客区主要是指为宾客提供直接服务、供其使用和活动的区域,包括旅馆大堂、前台接待、休息区域、大堂吧、餐饮、康体娱乐、会议商务、客房等,凡是宾客宾客活动到的区域均可归属为宾客区。后勤区是为宾客区和整个旅馆正常工作提供保证的部分,包括办公、后勤、服务、工程设备。

▲旅馆建筑功能关系图

▲旅馆建筑功能与流线构成关系图
功能组合
旅馆各功能部分组合方式分为集中式和分散式两种。
集中式
城市旅馆由于用地有限,多为高层建筑,各功能部分采用集中式竖向叠加的组合方式。充分利用垂直空间分配功能区域。从各功能区域之间的联系和避免干扰的角度以及宾客流线等因素考虑,城市高层旅馆的功能区域通常分为地下层(停车库、后勤、机房等)、低层裙房(大堂接待、餐饮、康体娱乐活动)、主楼客房层、顶层观光厅(餐厅、酒廊)和顶部设备房等部分。

▲集中式竖向叠加
分散式
地处风景旅游区的度假旅馆通常采用分散式庭院组合的方式,由多个设置不同功能的低(多)层建筑通过庭院、连廊等形式连接,形成平面水平展开布置的总体布局。在规划设计中要注意尽量集中相同功能的区域,构成一个功能块。

▲旅馆建筑分散式庭院组合
03
旅馆建筑的流线分析和流线组织
流线分析
根据旅馆类型、规模、等级及使用要求,其具体的功能构成与流线也有相应简化或增加。

▲普通旅馆功能流线图
大型高档旅馆和综合性城市旅馆因其规模较大、功能复杂,可对其客房服务功能部分与对外会议、商务活动和餐饮、娱乐功能分别设置入口组织功能布局与流线。

▲综合旅馆功能流线图
流线组织

▲浙江东阳凤凰谷天澜酒店
根据旅馆各功能区域的构成,合理组织动向流线是旅馆设计的重要内容。旅馆各功能构成之间的动向流线主要分为宾客流线、服务流线、物品流线。
宾客流线
宾客流线是旅馆中的主要流线,包括住宿、用餐、娱乐、会议、商务等流线,同时在宾客出入口处可分为团队宾客和散客流线。

▲宾客流线
服务流线
服务流线包括员工内部工作活动流线和为宾客提供服务的流线。员工内部工作活动流线主要包括员工入口、更衣淋浴、用餐、进入工作岗位等,不能与宾客流线交叉;工作服务流线包括客房管理、布草、传菜、送餐、维修等,流线设计要方便连接各个服务区域,简洁明确。

▲服务流线
物品流线
物品流线主要包括:原材料、布草用品、卫生用品等进入旅馆的路线—回收物品—废弃物品运出路线。

▲物品流线
04
旅馆建筑的总平面设计

▲意大利Silena酒店
1.旅馆建筑总平面通常由建筑出入口、广场、道路、停车场、庭院绿化与小品等组成。
2.总平面组成可随基地条件、旅馆等级、规模、性质等的不同变化而变化。根据需要,还可以考虑设置露天茶座、网球场、游泳池及高尔夫球场等。

▲旅馆总平面组成内容
出入口设计
1.旅馆建筑应合理划分功能分区,组织各种出入口,使客人流线与服务流线互不交叉。至少应将客人出入口和后勤入口分开。
2.客人出入口包括主要出入口、团体出入口、宴会与商场出入口;后勤出入口包括员工出入口、货物出入口、垃圾污物出入口、旅馆出入口可根据旅馆的规模、等级、性质及管理要求等确定。
3.当旅馆建筑与其他建筑共建在同一基地或同一建筑内时旅馆部分应有单独分区,便于管理,客人使用的主要出入口应独立设置。
4.在多功能综合建筑中,并有设施将客人迅速送达旅馆的接待大堂。’

▲出入口示意简图
布局方式

▲印度kumaon酒店
旅馆总平面布局随基地条件、周围环境状况、旅馆等级、类型等因素而变化,根据客房部分、公共部分、后勤部分的不同组合,可概括分为分散式、集中式、混合式等几种。

▲旅馆建筑平面布局方式
旅馆建筑客房层设计
05
旅馆客房应有适宜的尺度,长宽比不宜超过2:1,客房净高应不小于2.4米,卫生间净高不小于2.2米,客房内走道净高不小于1.1米,客房入口门宽不小于0.9米,门洞高度应不小于2.1米。
旅馆的客房类型标准单床间、标准双床间、无障碍客房、行政套房、豪华套房与总统套房等。我们在快题设计中,着重掌握前两种。
客房标准间设计
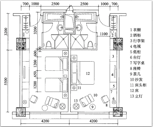
在一个自然间内,满足客房的基本要求,形成一个包括住宿空间和卫生间的独立空间,称为标准间。客房内,放一张大床,称为标准大床间,放两张单床,称为标准双床间。

▲标准双床间与标准大床间平面布局图
以上,
就是今天旅馆建筑设计的干货分享
童鞋们,你们学会了吗



添加好友时请备注自己的姓名+学校/工作单位+意向问题,例如:“张三、重大15建筑,重大考研咨询”以便老师能更好的解决你的问题。
*报名面授课程是先缴纳定金,剩余学费报道再交,交于指定官方账户。报名网络课程是直接缴纳学费后,进群学习。



Tle:400-689-8023 Mp:18782928289
WeChat:huisifang / sfsh008 / sfsh007
8:30-12:00 / 14:00-18:00 / 19:00-22:00 / 夏
8:30-12:00 / 13:30-17:30 / 19:00-22:00 / 冬
四方手绘考研中心(微信公众号总号)
绘四方(微信公众号总号)
绘四方建筑规划设计研究院
绘四方设计软件
截止2021年,四方手绘全国各地校区已经实行独立管理运营,为了便于各位同学在考研咨询和相关事务处理上,
能找到对应四方校区城市的管理公司和负责人。现将相关信息公布如下:四方手绘总部(重庆校区)独立运营
——重庆绘聚四方艺术培训有限公司;四方手绘昆明校区——云南四方教育发展有限公司独立运营;四方手绘
成都校区——绘四方(成都)建筑设计有限公司独立运营;四方手绘上海校区——上海礼方教育科技有限公司
独立运营;四方手绘沈阳、大连、哈尔滨校区——沈阳摆渡仁教育咨询有限公司独立运营;四方手绘长沙校区、
郑州校区陆续更新中。
重庆校区:重庆大学B区中前欣阳广场15-5 张老师
成都校区:西南交通大学犀浦校区南门前众望街159号2楼、西南交大九里堤校区地铁7号线茶店子站C出口 张老师
昆明校区:昆明理工大学呈贡校区 4 号门对面、西南林业大学白龙校区6号门旁 龙老师
长沙校区:长沙市湖南大学岳麓区山南路2号 李老师
郑州校区:郑州市河南农业大学金水区农业路63号 王老师
武汉校区:武汉市武昌洪山区珞喻路1037号华中科技大学
广州校区:广州市华南理工大学天河区五山路381号 曹老师
南宁校区:南宁市西乡塘区罗文大道广西艺术学院青秀区教育路7号 李老师
沈阳校区:沈阳市浑南区浑南中路20号 金地·琥珀天地T公寓 杨老师
哈尔滨校区:哈尔滨工业大学南岗区西大直街92号 纪老师
大连校区:大连理工大学甘井子区凌工路2号 李老师
北京校区:北京市西城区展览馆路 1 号北京建筑大学西城校区附近
天津校区:天津市天津大学南开区卫津路92号
上海校区:上海市杨浦区四平路 1239 同济大学四平路校区附近
南京校区:江苏省南京市玄武区四牌楼 2 号、东南大学四牌楼校区东门附近
无锡校区:江苏省无锡市滨湖区蠡湖大道1800号、江南大学蠡湖校区附近
咨询热线:4006898023
绘四方建筑设计
绘四方城市规划
绘四方景观园林
绘四方室内设计
绘四方工业设计
绘四方视觉传达
绘四方国际艺术中心
绘四方职业考证
服务热线
13720140235
18782928289
全国免费咨询热线
400-6898-023
四方手绘考研中心微信公众号
微信在线客服咨询
客服咨询榴莲老师
客服咨询桃子老师
客服咨询西瓜老师
客服咨询草莓老师
客服咨询荔枝老师